Following discussions with
the contractors appointed to install our new demountable classrooms, I am now
in a position to inform you of how the project will affect the school in the
coming weeks.
Work has been brought
forward slightly and the builders have been on site this week to enclose the
site so construction can begin at the start of the holidays. Most of the work
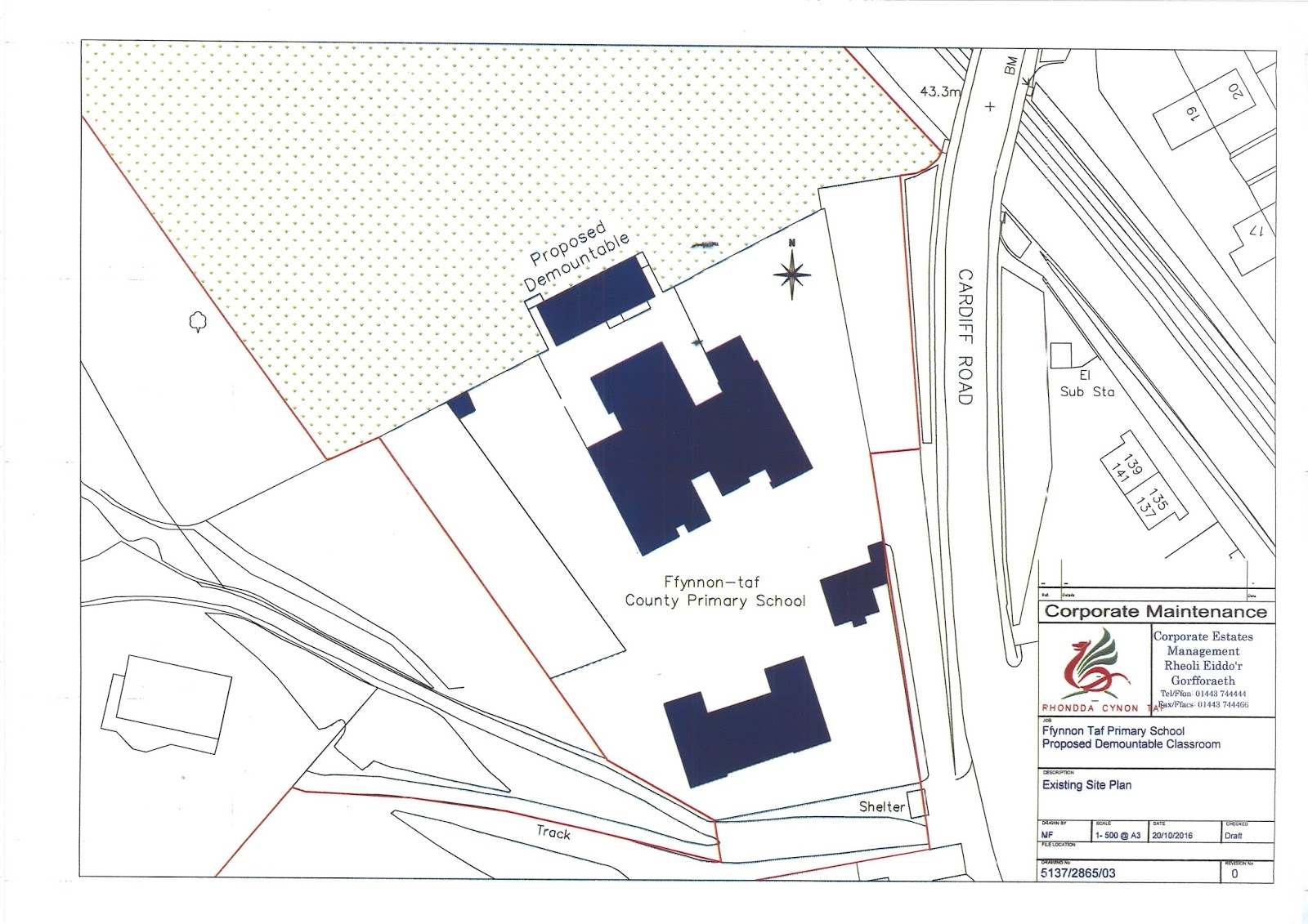
will be taking place on the field at the rear of the school but a part of the
car park and lane will be cordoned off as part of the construction site. The
contractors have assured us that no deliveries or heavy plant traffic will
attempt to access the site during collection and drop off times.
From the first day of
spring term (Tuesday 3rd January), the only access into school will
be on foot and through the first set of gates into the playground – children
and parents of all classes will have to use this pedestrian route into
school until construction ends. This is normal practice for the busy
collection/drop off times but will now include breakfast club and after school
clubs. We realise this may be inconvenient for some but is necessary to protect
the health and safety of our pupils, parents and staff.
Once inside the school
grounds, collection and drop off arrangements remain the same for all classes
but we would ask that extra care is taken when walking children to and from
breakfast club, after school childcare provision and Dosbarth Cangarw (in
short, any access points at the rear of the school building that would require
walking through the car park).
Myself
or another member of staff will be present for the first few days of these new
arrangements to offer assistance if required. I apologise in advance for any
inconvenience caused but I’m sure you’ll agree this is worthwhile for the ongoing
development of our school.
We have requested for several years that the school receive
additional classroom space. This has been due to the fact that we have enough
children in Key Stage 2 to form four classes but only have three classrooms. In
addition, we have very little space in Key Stage 2 for group projects,
intervention groups, music lessons and nurture activities.
While we would have obviously preferred an extension, we
welcome the extra space provided by the two large classrooms that will be
installed. I have added photographs above of a very similar demountable and plans below that illustrate exactly where in the school grounds it will sit. The
building will be modern and clean and the rooms within very large, light and
airy with excellent storage space. With our talented staff, I’m sure they will
be warm and welcoming learning environments in no time. 




No comments:
Post a Comment